
Die Südorientierungen der Wohnungen sorgen für die Ruhe, um den Blick in die Natur rundum geniessen zu können. Dass Sie dennoch in wenigen Minuten die umliegenden Geschäfte Bonndorfs erreichen macht Sie in Ihrer Selbstversorgung flexibel.
Auch gemütliche Cafés und feine Restaurants sowie das Schloß von Bonndorf sind mit wenigen Schritten zu erreichen.

Das Haus Martin wurde im Jahre 2005 bezugsfertig. Bauherr ist ebenfalls die Gemeinnützige Baugenossenschaft Bonndorf eG.
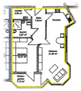
Dieses Gebäude umfasst 9 Wohnungen mit jeweils 63 bis 77 qm Wohnfläche. Alle Wohnungen sind mit einem grossen Wintergarten ausgestattet.
Haus Martin
Mühlenstrasse 2b
79848 Bonndorf
erreichbar über das St. Laurentius